Terrain - Saint-Hilaire-la-Forêt - Réf. 04304-12 - 75 000 € H.A.I.

Agence Grolleau
12, route de la Dugeonnière
85750 Angles

Agence Grolleau
12, route de la Dugeonnière
85750 Angles
Contacter l'agence
Description
réf. : 04304-12
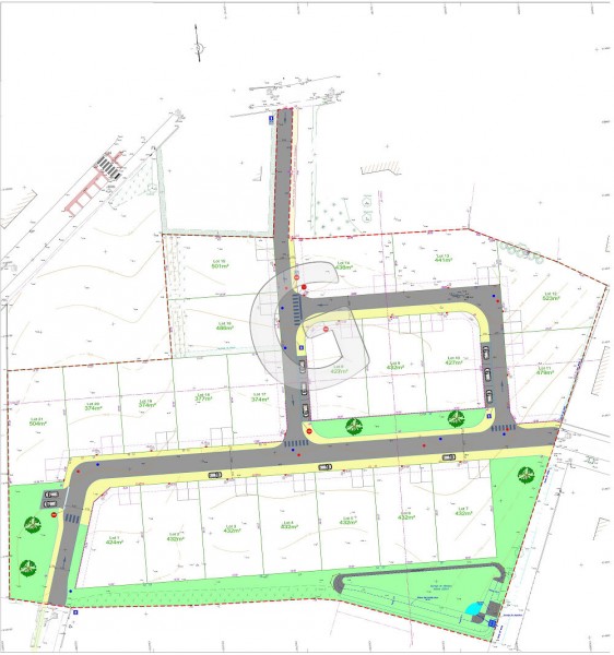
A VENDRE : Parcelle de terrain à bâtir à Saint-Hilaire-la-Forêt
Nous vous proposons une parcelle de terrain à bâtir, située au sein d'un lotissement de 21 lots.
Ce terrain, d'une superficie de 523 m², est idéal pour votre projet de construction.
Il est entièrement viabilisé avec accès à l'eau, l'électricité, le tout-à-l'égout et internet.
Située à seulement 5 minutes en voiture des plages de Jard-sur-Mer, cette parcelle bénéficie de la proximité des commerces, écoles et services.
Saint-Hilaire-la-Forêt offre un cadre de vie agréable, entre nature et bord de mer.
Pour plus d'informations ou pour organiser une visite, contacter nous !
AGENCE GROLLEAU JARD SUR MER : 02.51.97.54.42
Tous nos biens sur www.agence-grolleau.com
Les informations sur les risques auxquels ce bien est exposé sont disponibles sur le site Géorisques : www.georisques.gouv.fr
- Réf. : 04304-12
- Prestation : Vente
- Type de bien : Terrain
- Ville : Saint-Hilaire-la-Forêt
- Prix H.A.I. : 75 000 €
- Surface habitable : 523 m²
- Surface du terrain : 523 m²
- Nb. d'étages : 1